技术参数
产品型号:MQ61F/361F
公称通径:DN150-1000mm
公称压力:Class 150~400, PN1.6~6.4MPa
适用温度:-29℃~200℃
阀体材质:碳钢、不锈钢
适用介质:水、气、油品
操作方式:手柄、蜗轮
设计标准:GB/T 12237
连接方式:GB/T 12224
长度标准:GB/T 13927
试验标准:GB/T 26480
产品概述
埋地式放散全焊接球阀主要用于工程输送管道上,用来作为介质的接通和开关调节。埋地式放散球阀可以直埋于地下,也可直接安装,不用设置地下阀门控制室。埋地式放散球阀的整体结构采用全焊接的工业结构。埋地式放散球阀广泛应用于城市燃气的地下管线,天然气输送管线,调压站等领域。埋地式放散球阀只需在地上用T型手柄、或者传动机构进行转动操作即可,简单方便。
产品特点
1、埋地式放散球阀,阀体采用无缝钢管压制成型阀门的整体结构采用全焊接制造工艺,减少了外泄漏,阀门重量大大减轻,安装更便捷采用弹性垫圈及碳纤维增强密封圈,可经手几万次往复运动无泄漏,保证阀门的使用寿命。
2、埋地式放散球阀,阀门的密封可以在-40℃-200℃的条件下连续使用而不会失效连接方式有对焊、法兰、螺纹连接等形式,开启采用手柄、蜗轮传动、电动等方式。埋地式放散球阀深埋地下,不用设置阀门井。
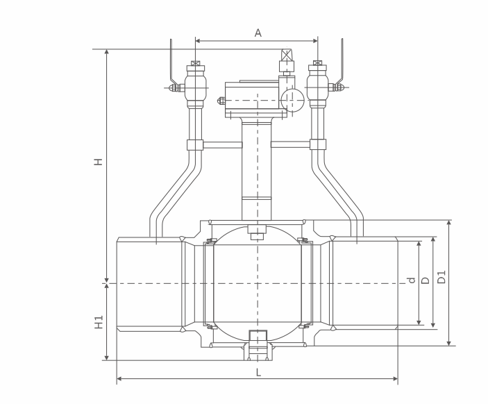
主要外形连接尺寸
|
DN(mm) |
NPS(in) |
d |
D |
D1 |
L |
A |
H2 |
H1 |
|
150 |
6 |
150 |
168 |
273 |
1000 |
400 |
客户指定
|
177 |
|
200 |
8 |
200 |
219 |
356 |
1100 |
400 |
207 |
|
|
250 |
10 |
250 |
273 |
426 |
1100 |
400 |
249 |
|
|
300 |
12 |
300 |
325 |
510 |
1230 |
500 |
298 |
|
|
350 |
14 |
334 |
356 |
560 |
1350 |
500 |
315 |
|
|
400 |
16 |
387 |
406 |
630 |
1480 |
500 |
380 |
|
|
500 |
20 |
489 |
508 |
813 |
1720 |
600 |
487 |
|
|
600 |
24 |
590 |
610 |
990 |
1800 |
650 |
578 |
|
|
700 |
28 |
686 |
711 |
1140 |
1950 |
700 |
660 |
|
|
800 |
32 |
781 |
813 |
1320 |
2150 |
800 |
752 |
|
|
900 |
36 |
876 |
914 |
1480 |
2400 |
800 |
852 |
|
|
1000 |
40 |
978 |
1020 |
1620 |
2600 |
800 |
954 |
注:该结构长度L为客户未指足袖管长度时尺寸,可根据客户需要两端加袖管,袖管的长度由客户指定。


































